2D Draughting and Detailing

  • Machined manufacturing drawings

  • Sheet metal manufacturing drawings, including DXF and DWG formats.

  • Fabrication and weldment drawings

  • GD&T and BOM inclusion

  • Assembly drawings and workshop instructions

  • Conversion of hand sketches into professional drawings

  • Custom component drawings and modifications

  • Revision control and BOM generation.

Deliverable Files

  • PDF format

  • DXF format

  • STEP files

  • DWG format

Part Drawings

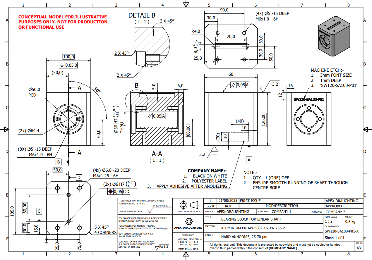
Machined block example

An engineering technical drawing of a bearing block for a linear shaft, featuring multiple views, detailed dimensions, annotations, and specifications including a 3D isometric view, sectional views, and detailed close-ups of specific components.

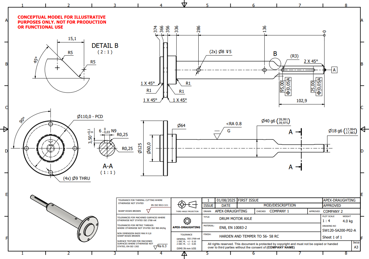
Machined shaft example

Technical drawing of a drum motor axle showing various views, dimensions, and detailed specifications, with a red warning note in the top left corner.
Technical drawing of a folded stainless steel box, showing dimensions, hole placements, and construction details, with a 3D rendering of the box in the upper right corner.

Sheet metal example

Technical drawing of a folded stainless steel box with detailed dimensions, a corner detail view, and notes about standards and tolerances.

Sheet metal Flat patterns/DXF/DWG formats

Fabrications

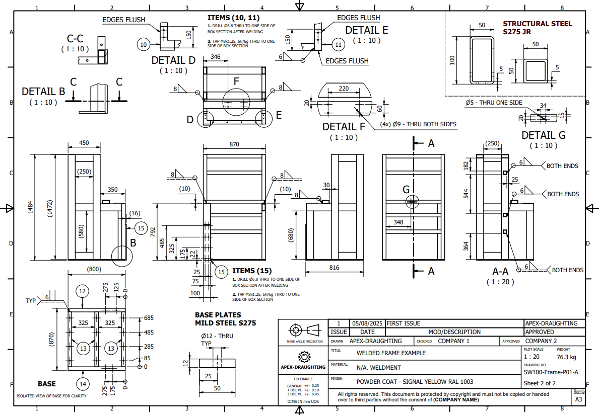
3D schematic of a welded steel frame structure in yellow, composed of vertical and horizontal beams. Includes a parts list with descriptions and measurements, and notes indicating it’s a conceptual model for illustrative purposes only.

Welded frame example

Cutting list included (if applicable). Excel format included

Table listing steel parts with details such as article number, part name, quantity, and material. Includes items like side plates, base plates, seating plates, and RHS sections, with measurements and quantities.
Technical engineering drawing of welded steel frame with detailed dimensions and labels for various views and sections.

Welded frame example

A detailed engineering drawing of a welded stand with various views, measurements, and annotations, including a 3D illustrated view, technical specifications, and notes.

Welded Stand Example

Assembly drawings

A detailed engineering diagram of a mechanical assembly with parts labeled and a parts list to the right. The diagram includes a blue stand, gears, shafts, and various mechanical components. Red warning text notes this as a conceptual model for illustrative purposes only.

Assembly example

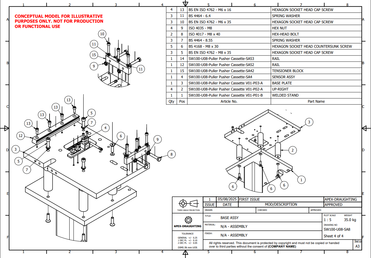
Exploded assembly views

A technical drawing of a mechanical assembly with labeled parts and parts list, titled "Base Assembly" from APEX-DRAUGHTING.

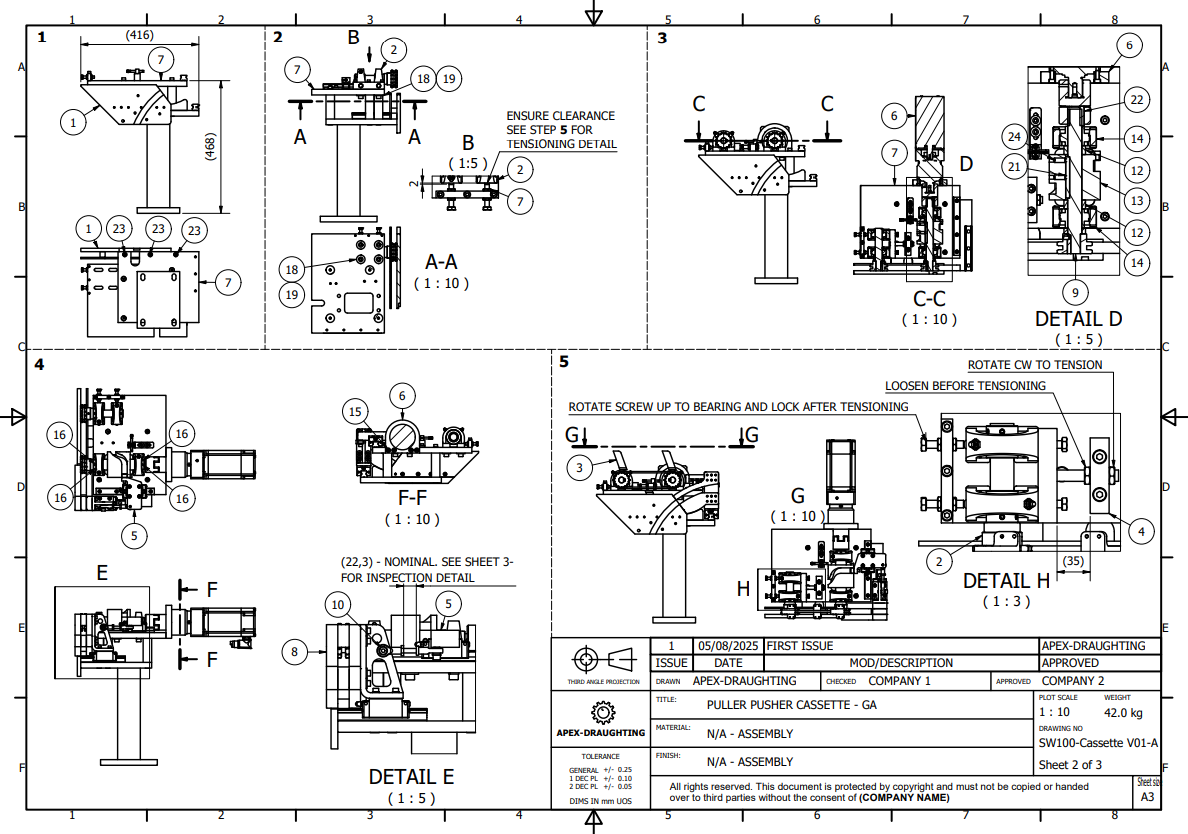
Assembly Detail

A detailed technical drawing of a mechanical assembly for a puller pusher cassette, including multiple views and sections with labeled parts, dimensions, and instructions.

Inspection detail

Detailed technical engineering drawing of a mechanical device, featuring various views, instructions, and measurements for assembly and inspection, including labeled sections for home position, rotating motor, and sensor pick-up.

Drawing Templates

To ensure compliance to BS 8888 standards, all drawings will include the standard Apex-Draughting template and title block, which includes:

  • Title / Drawing Name

  • Drawing Number

  • Revision Status, Letter

  • Scale

  • Size of Sheet (A3)

  • Drawn by / Checked by / Approved by

  • Company or Organization Name

  • Material

  • Units of Measurement

  • Standardized Border and Margins

  • Area for additional notes

  • Drawing status

  • General tolerances for machining and thermal cutting

Manufacturing detail - PDF format

Technical drawing of a cylindrical part with dimensions indicating a diameter of 50mm and a hole of 20mm, including multiple views and annotations.

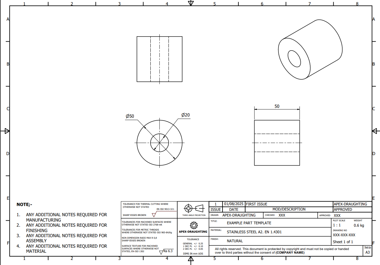
Standard Template

Technical drawing template for a stainless steel part, includes project info, date, title, material, finish, scale, weight, and revision details on a white background.

We can accommodate for custom templates / modifications to the standard Apex-Draughting template if required.

If you would like to receive a sample drawing to view, please get in touch and we can send one over.

Technical drafting sketches of a mechanical component, with compass and pen on gray paper.
Logo with a yellow gear icon above the text 'APEX-DRAUGHTING' in bold black letters.